Wohnung zu vermieten: C11 (4 Zimmer 126 m²)

Kurzinfo zum Ausdrucken als PDF (2 Seiten DIN A4, mit Grundriss, ohne Bilder, öffnet neues Tab/Fenster)

Lage

21031 Hamburg-Lohbrügge (Boberg), Reinbeker Redder 55a. Zur großräumigen Lage siehe die übergeordnete Seite Aktuelle Angebote.

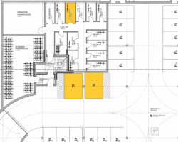
Die Wohnung liegt in Haus C im Staffelgeschoss (also in der oberen von 3 Etagen) und bildet dessen westliche Hälfte, siehe auch den Lageplan in der Fotogalerie unten.

Wohnung

Diese großzügige, sonnige Wohnung hat Fenster zu drei Seiten und lässt keine Wünsche offen:

  • 2 Dachterrassen; 3 Zimmer mit Zugang zu einer Dachterrasse
  • großes Wohnzimmer mit Einbauküche und großen, bodentiefen Fenstern zu zwei Seiten
  • Einbauküche mit weißen Fronten, Induktionsherd und Umluft-Dunstabzug (Geschirrspüler und Kühlschrank mieterseitig)
  • großes Duschbad mit Stellplätzen für Waschmaschine und Trockner
  • zusätzliches Gäste-WC
  • geräumiger Flur, hier passen auch Regale rein
  • Wohnungseingangstür einbruchhemmend Klasse RC2
  • Abstellraum in der Wohnung und zusätzlicher Kellerraum
  • Heizung und Warmwasser über Fernwärme
  • Vinylboden Eiche-Optik
  • Kabel­fern­seh- und Tele­fon­an­schluss (Cat7) in jedem Zimmer
  • Aufzug (auch in Keller/Tiefgarage)

Aufteilung

Wohnen/Küche35,08 m²
Dachterrasse 1 (Südwest, 50%)11,25 m²
Schlafen19,13 m²
Dachterrasse 2 (Nordwest, 25%)3,19 m²
Zimmer 114,47 m²
Zimmer 214,16 m²
Bad7,71 m²
WC2,40 m²
Flur14,73 m²
Abstellraum3,00 m²
Wohnfläche125,92 m²
dazu Kellerraum7,37 m²

Kosten (monatlich)

Miete netto kalt (16 EUR/m²)2.015 EUR
Vorauszahlung Betriebskosten (incl. Grundsteuer)215 EUR
Vorauszahlung Wasser/Abwasser (20 EUR je Person) z. B.40 EUR
Vorauszahlung Warmwasser (15 EUR je Person) z. B.30 EUR
Vorauszahlung Heizkosten130 EUR
Summe (bei 2 Personen)2.430 EUR

Jährliche Abrechnung der Betriebskosten; Wasser, Warmwasser und Heizung über Zähler.

Die Nettokaltmiete ist keine Indexmiete, sondern eine moderate Staffelmiete alle 3 Jahre +5% für die ersten 10 Jahre, Nettokaltmiete also ab 01.04.2029 2.115 EUR, ab 01.04.2032 2.220 EUR, ab 01.04.2035 2.335 EUR, danach nach den gesetzlichen Vorschriften.

Angestrebt wird ein langfristiges Mietverhältnis. Deshalb soll die ordentliche Kündigung gegenseitig ausgeschlossen werden für die ersten vier Jahre. Danach unbefristet weiter mit gesetzlicher Kündigungsfrist.

Energieausweis

Der endgültige Energieausweis ist in Erstellung. Daten des vorläufigen Energieausweises:
Bedarfsausweis, Endenergiebedarf 58,4 kWh/(m²·a), Energie­effizienz­klasse B, Baujahr 2023, Fernwärme.

Energieausweis (PDF, öffnet neues Tab)

Tiefgarage

Zur Wohnung gehören zwei Stellplätze in der Tiefgarage. Es sind die besten Plätze (P1 und P2) nahe der Einfahrt und nahe dem Hauseingang, siehe Plan unten in der Bildergalerie. Beides sind XL-Plätze mit 3,50 m Breite. Miete je 130 EUR monatlich. Bei Nichtbedarf können Sie einen oder beide Plätze untervermieten.

Bilder

Auf Mobilgeräten können Sie in der Vollbild-Anzeige mit dem Button „Info“ („i“ im Kreis) die Info-Texte zu den Bildern einblenden (im Desktop-Browser werden diese standardmäßig gezeigt).

Kontakt

Die Wohnung kann nach Fertigstellung bezogen werden, voraussichtlich ab 01.04.2026, vielleicht auch 14 Tage früher.

Interessiert? Schreiben Sie mir (dem Eigentümer) gerne. Markus Nowoczyn, no1803@nowoczyn.de